Ngôi nhà xây dựng trên diện tích không quá lớn nhưng được thiết kế sân vườn rộng rãi cùng dáng nhà chữ A độc đáo.

Căn nhà mang dáng chữ A độc đáo nằm trên diện tích đất 111 m2 tại Đồng Hới, Quảng Bình.


Không gian thoáng đãng, hài hòa với thiên nhiên xung quanh.

Phòng khách của căn nhà có nhiều lối thông với không gian sân trước.

Nhờ sử dụng nhiều cửa lớn cùng gạch lỗ, căn phòng lấy ánh sáng tự nhiên rất tốt.

Họa tiết trang trí độc đáo được kiến trúc sư sử dụng lặp lại nhiều lần trong công trình.

Chiếc kệ TV kiêm nhiệm vụ bình phong ngăn cách bếp và phòng khách.

Do sử dụng tầng lửng nên trần không gian sinh hoạt chính rất cao và thoáng.

Các mảng cây xanh được đặt len lỏi trong từng góc nhỏ căn nhà, giúp điều hòa không khí và chắn bụi.

Tông màu chính trong thiết kế công trình là trắng và nâu gỗ.

Bếp không cầu kỳ, tối giản.

Cầu thang sử dụng kính thay vì song gỗ hoặc sắt, khiến không gian thoáng đãng hơn, tầm mắt không bị ‘sạn’.

Phòng ngủ với “giường công chúa” mang cảm giác phòng nghỉ dưỡng cao cấp.

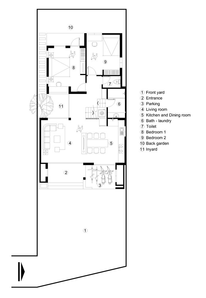
Mặt bằng tầng một công trình.
Theo Zing
Nguồn Tạp chí kiến trúc Việt Nam
EmoticonEmoticon